ПРОДУКЦИЯ
Продукция
Свяжитесь с нами
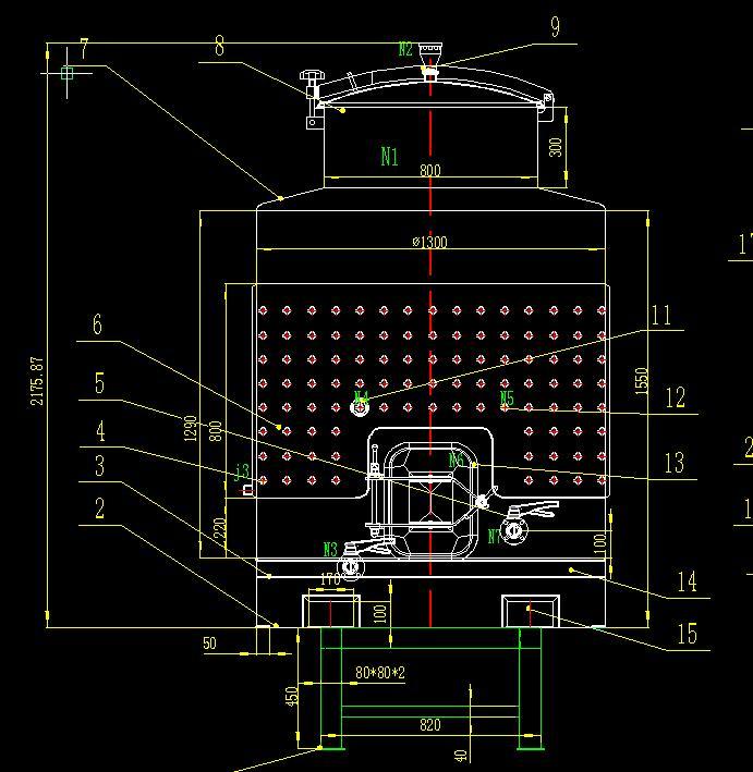
ОПИСАНИЕ ПРОДУКТА
Этот тип контейнера оснащен отверстиями для вилочного погрузчика или рамными конструкциями, что позволяет погрузчику легко вставлять вилы для перемещения, упрощая процесс погрузки и разгрузки.

1. Интегрированные карманы для вилочного погрузчика (обязательная функция)
Это ключевая особенность. Каждый резервуар для вина с вилочным погрузчиком имеет усиленные стальные карманы (обычно 2–4 кармана, симметрично расположенные на основании или нижних боковых стенках резервуара). Эти карманы рассчитаны на полный вес резервуара и вина внутри (полный резервуар на 500 галлонов может весить более 4500 фунтов!). Важно, что карманы утоплены — они не выступают, поэтому резервуар не зацепится за стеллажи, шланги или другое оборудование при перемещении. Мы никогда не используем внешние кронштейны — они слишком легко ломаются под тяжелыми нагрузками.
2. Складываемая конструкция (для экономии места)
Большинство резервуаров для вина с вилочным погрузчиком можно складывать, когда они пустые (а иногда и частично заполненные, с жесткими ограничениями по весу). Верх резервуара имеет усиленный обод, который идеально подходит под основание другого резервуара, что позволяет складывать их в 2–3 ряда с помощью погрузчика. Это революционное решение для небольших и средних виноделен — вам не нужен огромный склад для хранения пустых резервуаров в межсезонье. Совет: всегда проверяйте рейтинг складывания производителя — никогда не складывайте полные резервуары, если они явно не предназначены для этого (большинство не предназначены по соображениям безопасности).
3. Прочная и легкая конструкция (оптимизирована для вилочного погрузчика)
Эти резервуары почти всегда изготавливаются из нержавеющей стали 304 или 316 (пищевой, устойчивой к коррозии, идеально подходит для кислого вина). Но толщина стали тщательно подобрана: достаточно толстая, чтобы удерживать вино без деформации, и достаточно тонкая, чтобы ее мог перемещать стандартный складской погрузчик (без необходимости в тяжелом промышленном погрузчике). Основание также усилено прочной стальной рамой — это предотвращает изгиб или растрескивание резервуара при подъеме погрузчиком, даже когда он полный.
4. Портативные размеры (оптимизированы для маневренности погрузчика)
Резервуары для вина с вилочным погрузчиком имеют модульные и маневренные размеры — обычно от 50 галлонов (для небольших партий) до 1000 галлонов (для массового производства небольших партий). Они никогда не делаются больше, потому что более крупные резервуары были бы слишком широкими/длинными для безопасного перемещения погрузчиком на винодельне (где проходы часто узкие, с низкими потолками и крутыми поворотами). Эта портативность позволяет перемещать резервуар прямо от пресса к зоне ферментации, затем в помещение для выдержки и, наконец, к линии розлива — без необходимости многократно перекачивать вино между фиксированными резервуарами (что снижает риск окисления!).
5. Удобные точки доступа для погрузчика (для легкого выполнения задач виноделия)
Клапаны, пробоотборные порты и люки доступа расположены на высоте, удобной для доступа при перемещении резервуара погрузчиком. Например, сливной клапан обычно находится на нижней стороне (но не слишком низко, чтобы не задеть вилы погрузчика), а пробоотборный порт — на уровне груди, так что вам не нужно подниматься по лестнице или опускать резервуар, чтобы взять пробу вина. Некоторые модели даже имеют регулируемую погрузчиком отметку высоты — оператор может поднять резервуар на нужную высоту для подключения шлангов или линий розлива без дополнительных подставок.
6. Ударопрочный внешний вид (для складской обработки)
Давайте будем честными — погрузчики не всегда работают идеально. Эти резервуары имеют усиленные угловые защитные элементы и устойчивые к царапинам покрытия на стали. Карманы для погрузчика также выложены толстой резиной или пластиком, чтобы предотвратить царапины от вил (царапины со временем могут привести к коррозии, что испортит вино). Это делает их гораздо более долговечными, чем стандартные резервуары без вилочного погрузчика, которые легко повреждаются при перемещении тяжелым оборудованием.
7. Совместимость со стандартными аксессуарами винодельни (без специальных инструментов)
Резервуары для вина с вилочным погрузчиком совместимы со всем стандартным оборудованием винодельни, которое у вас уже есть: охлаждающие рубашки, нагревательные элементы, стойки и пробки. Единственное отличие — вы можете перемещать резервуар со всеми этими аксессуарами (если они закреплены) с помощью погрузчика. Это экономит массу времени — вам не нужно отключать и подключать шланги каждый раз при перемещении резервуара. Например, вы можете ферментировать вино в резервуаре, подключить охлаждающую рубашку, переместить его в холодильную камеру погрузчиком и оставить для выдержки — все это без контакта с вином внутри.
Получить предложение
Упаковка и доставка
Рекомендуемые товары